Aller au contenu
Di Martino Architecte
Rénovation durable
Projets
Prestations
Rénovez avec un architecte
Contact
Projets
Prestations
Rénovez avec un architecte
Contact
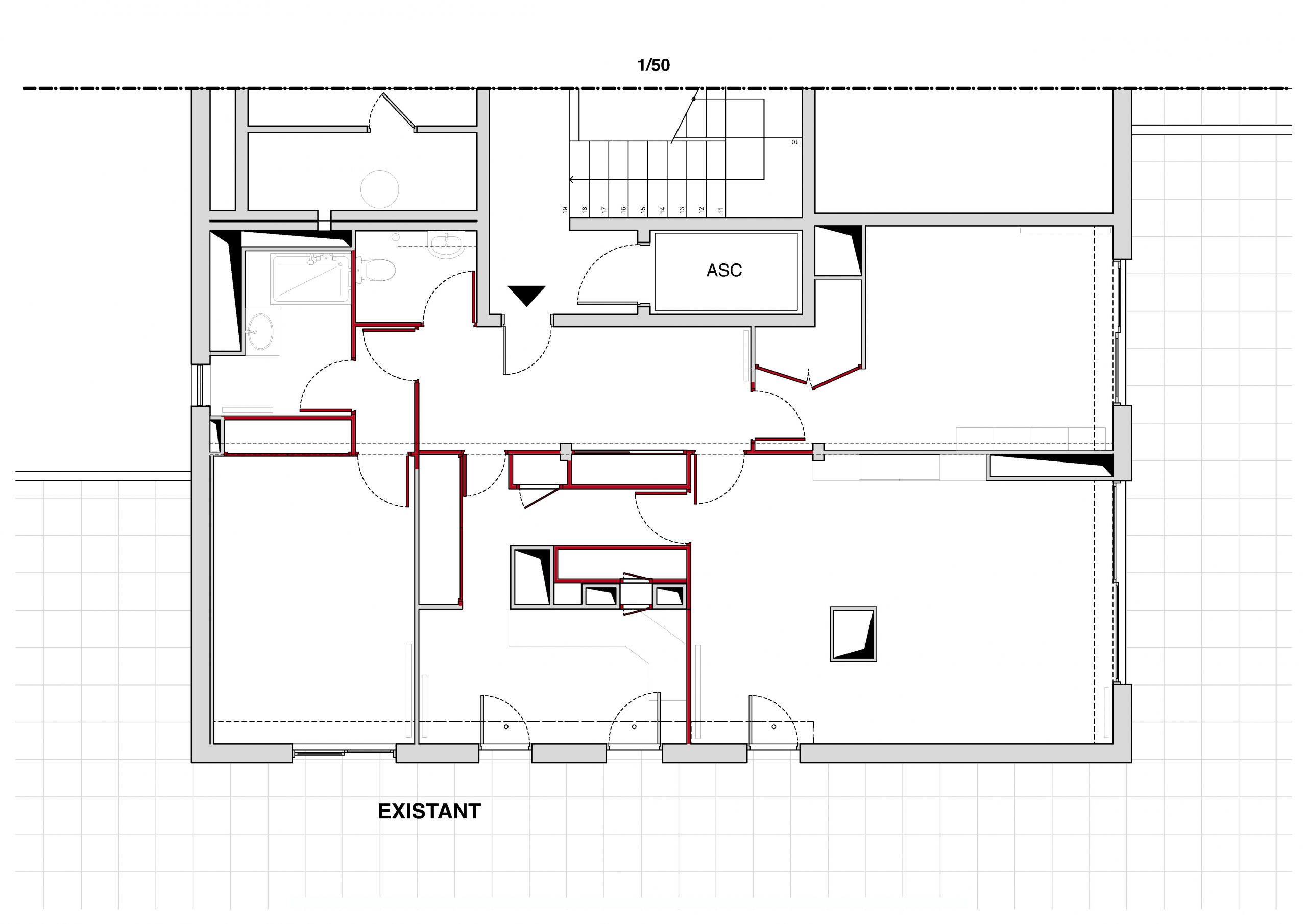
Appartement APM
Retour aux projets
2021
Cours Gouffé Marseille
Surface : 109 m²
En travaux