MFM Projet d’Agrandissement de l’Espace Habitable

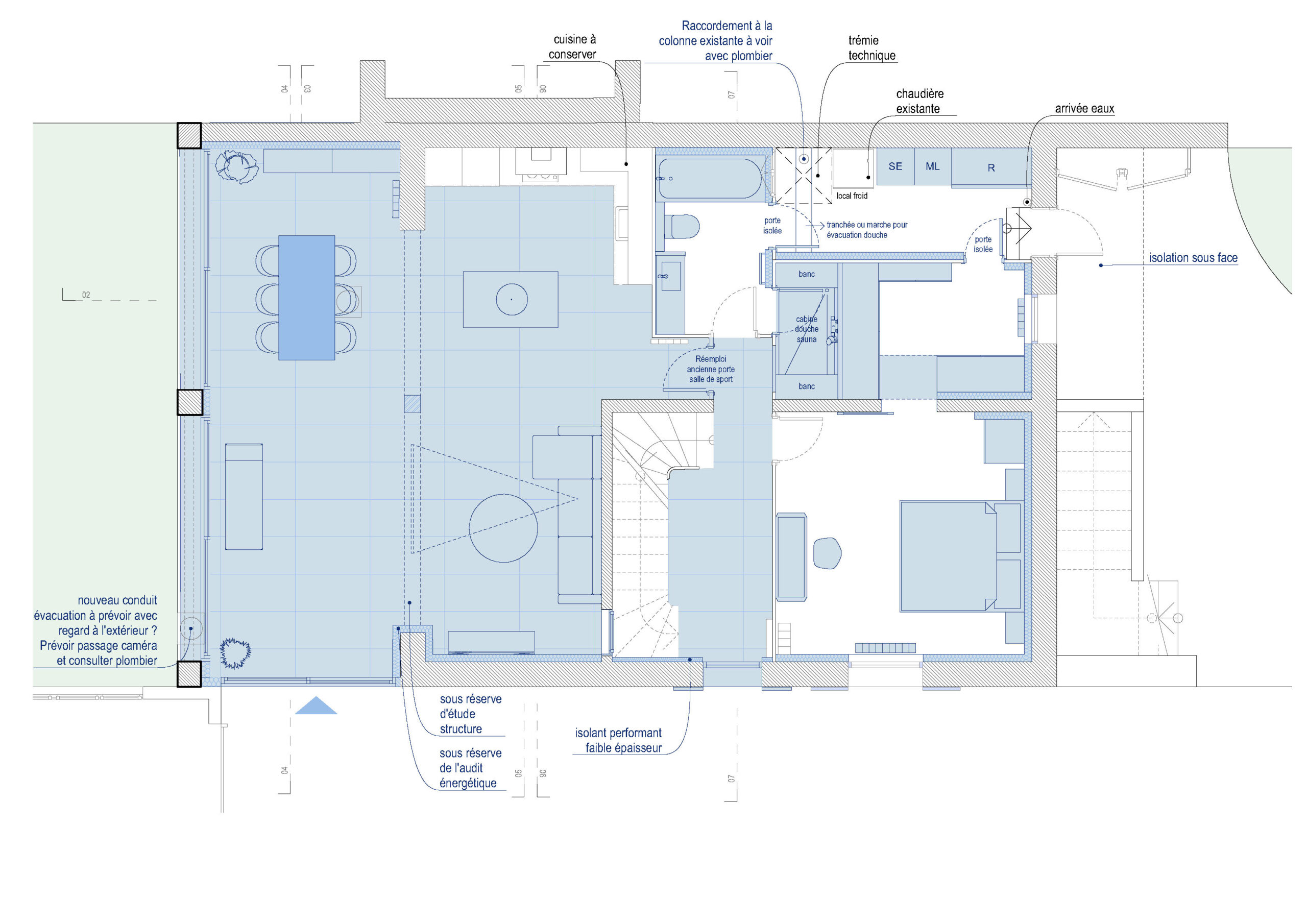
Le projet part de la volonté d’agrandir l’espace habitable au rez-de-chaussée en s’appropriant une grande loggia existante. La démolition du mur de façade au rez-de-chaussée a permis d’ouvrir un grand espace de vie à ce niveau.

Le nouveau volume améliore considérablement le bio-climatisme de la maison : il permet d’optimiser la compacité de la construction et de capter toutes les calories de l’ensoleillement grâce aux nouvelles surfaces vitrées orientés Sud-Ouest.

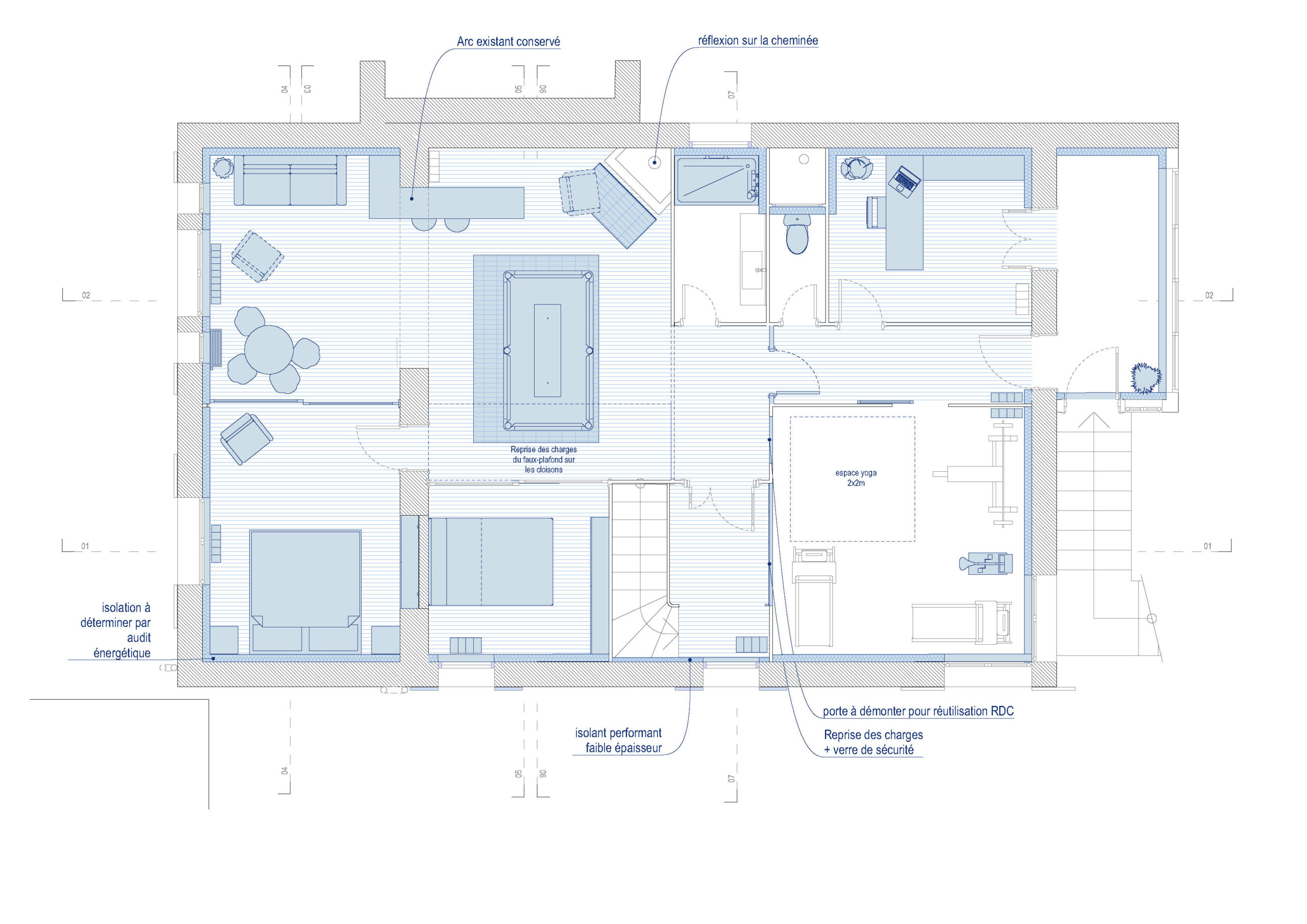
De plus, le projet a permis de réorganiser l’ensemble de la maison, en ramenant le centre de gravité de la vie diurne au RDC, en continuité avec le jardin, et la zone nuit à l’étage.

Les travaux ont permis de créer un espace de vie qui manquait de manière évidente à la maison. La réorganisation comprend également la création d’un espace de travail avec une entrée autonome.

Ainsi, le projet offre une nouvelle qualité de vie, en harmonisant les espaces intérieurs avec l’extérieur et en répondant aux exigences contemporains de confort, de fonctionnalité et de performance énergétique.

Configuration pour la saison froide

• Apports solaires passifs : les grandes surfaces vitrées permettent la captation des calories gratuites du soleil ; la chaleur est stockée dans le sol du RDC à forte inertie thermique (béton, céramique).

• Redistribution de la chaleur : le sol minéral du RDC, ainsi chauffé de facon naturelle le long de la journée restitue la chaleur à l’ensemble de la maison pendant la nuit. De même, grâce à une isolation performante, la chaleur produite pendant les heures d’activité au rez-de-chaussée (chauffage, cuisine,..) se diffuse progressivement à l’étage, améliorant le confort des chambres la nuit.

Configuration pour la saison chaude

• Protections solaires : protections extérieures et vitrages fermés pendant la journée pour limiter les apports de chaleur.

• Ventilation naturelle : ouverture en fin de journée pour permettre la ventilation nocturne ; la configuration architecturale intégrant gaine d’origine qui fait office de puits provençal crée une dépression qui facilite l’évacuation de l’air chaud.

• Inertie thermique : les matériaux de construction maintiennent la fraîcheur intérieure grâce à leur capacité d’accumulation et au déphasage thermique.

• Confort supplémentaire : utilisation de ventilateurs pour améliorer la sensation de confort thermique, sans climatisation.

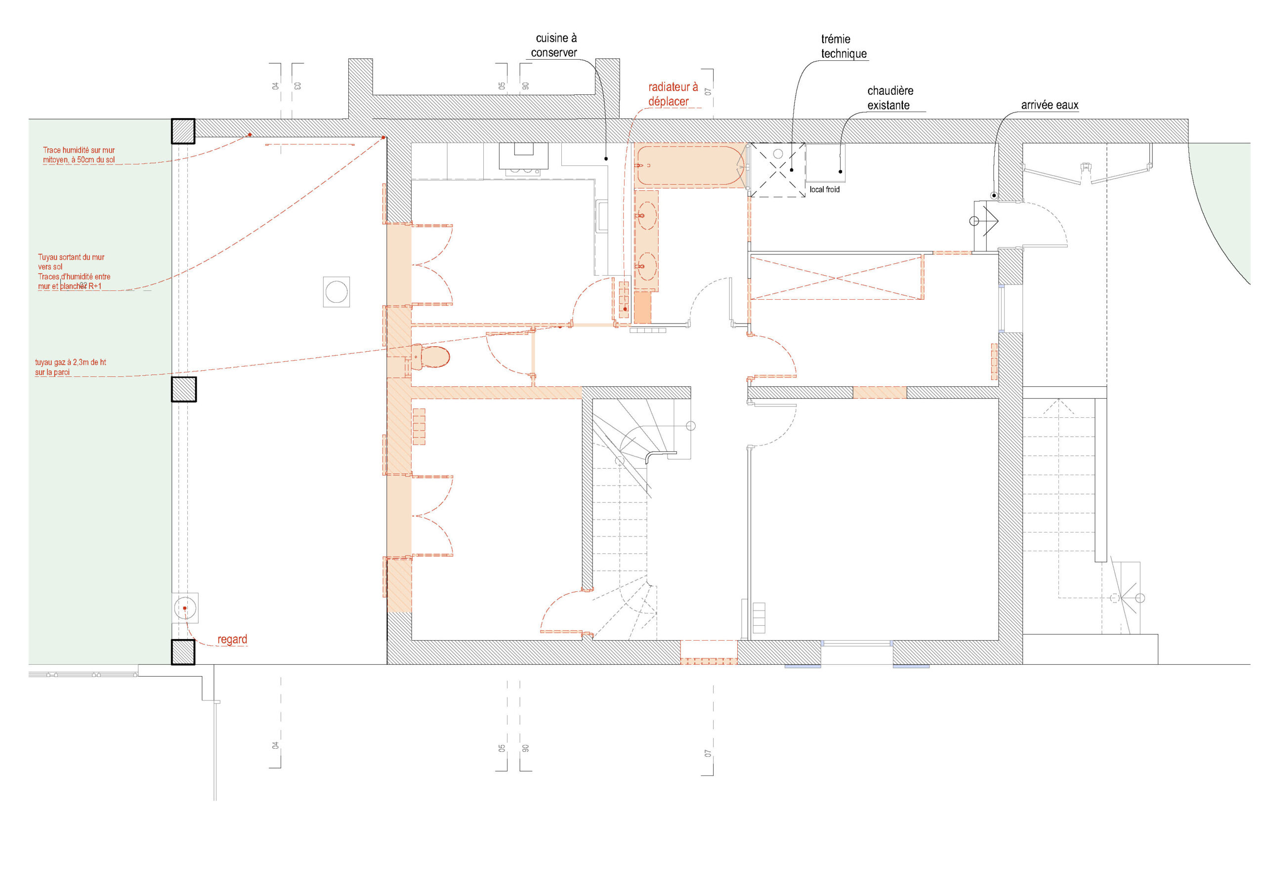
Plan rez de chaussée
Plan R+1